Tanya gazdálkodásra alkalmas területtel

4558 Nyomtatás Ajánlás Facebook

Gyula külterületén, Sióréten, a szervizút mellett eladóvá vált egy gazdálkodásra alkalmas tanya.

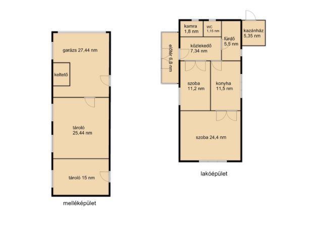
Az ingatlan lakórészének alapterülete 80 nm, melyben két szoba, egy konyha, kamra és külön fürdőszoba, WC is helyet kapott. A ház 1978-ban épült tégla falazattal és beton aljzattal. Az otthon melegéről vegyes tüzelésű kazán gondoskodik. A közművek közül a telken és a házban az áram van bent (2x10A és 1x20A), de a gáz is a telekhatáron található, így igény szerint akár be is vezethető. A víz ellátás 3 db fúrott kútról megoldott hidroforral és házi vízellátó rendszerrel (bevizsgált ivóvíz minőség). A külső és belső nyílászárók egyaránt fából készültek.
Az ár tartalmazza az alábbi területeket:
- 3440 nm szántó (8,08 AK) és 566 nm kivett lakóház, udvar, gazdasági épület
- 0,9727 ha szántó (0,9210 - 21,64 AK, 0,0517 - 0,94 AK))
- 1,0609 ha szántó (24,66 AK) és 590 nm kivett út
A fenti területek egymás mellett helyezkednek el, így akár igény szerint be is keríthetőek.
A telken a lakóingatlan mellett az alábbi felépítmények is megtalálhatóak:
- 600 nm alapterületű, duplavázas, 4,5 m magas, fűthető növényház, kiépített öntöző és csepegtető rendszerrel
- fóliasátor
- 288 nm alapterületű fedett növényház
Ezek mellett számos gyümölcsfa (meggy, őszibarack, cseresznye, sárgabarack stb) akácos és kökény is megtalálható a telken.

Kitűnő helyszíne lehet egy önműködő gazdaságnak, de akár egy nyugodt és csendes tanyasi otthonnak is tökéletes választás!

Gyula belvárosa mindössze néhány perces autózással elérhető, de Békéscsaba is 15 perc alatt megközelíthető autóval, de a sportosabbak számára kerékpár út is elérhető végig a két város között.

Mivel közvetlenül a szervizút mellett található, így tökéletes lehet akár vállalkozás telephelyének is.

Hívjon mielőbb és nézze meg!

Dr. Folczné Szentléleki Enikő
PRÉMIUM

Dr. Folczné Szentléleki Enikő

Karrierigazgató
Gyula
+36 (20) 392 2660
Észrevétel a hirdetéssel kapcsolatban
Egy ingatlanos naplója