Tágas otthon, gyönyörű kerttel és nagy terasszal eladó

1002 Nyomtatás Ajánlás Facebook

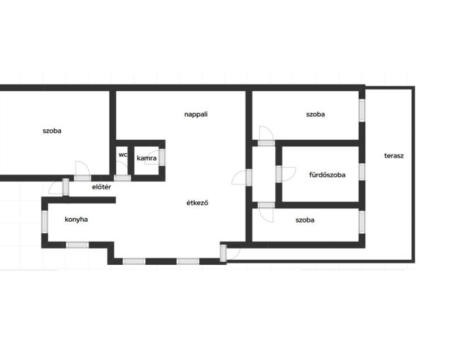
Eladó egy kivételes , 13 éves , tégla családi ház , Debrecen-Felsőjózsa városrészben Ez az ingatlan minden igényt kielégít: 120 m²-es lakótér egy szinten, prémium anyagok felhasználásával teljesen felújítva. A ház csendes , modern házas , új utcában található, ahol a nyugalmat és a zöld környezetet kereső családok számára ideális otthont nyújt..
A ház három tágas szobával rendelkezik, valamint egy hatalmas nappalival és egy modern amerikai konyha+étkezővel, amely tökéletes azok számára, akik szeretnének vendégeket fogadni ,vagy családi összejöveteleket tartani. Az ingatlan alacsony fenntartású, az új tulajdonos kényelmét pedig felszerelt klíma, külső hőszigetelés , hatalmas terasz , kamerarendszer , öntözőrendszer és redőnyök biztosítják.
A különálló fürdőszoba és WC mellett, gardrób és beépített szekrények is helyet kaptak, így bőséges tárolási lehetőséget kínálnak. Az otthon további különlegességei közé tartozik a kandalló és a dekorvilágítás, melyek otthonossá és hangulatossá varázsolják a tereket.
Az 565 m²-es parkosított telken egy lenyűgöző kert várja az új tulajdonost, kerti csobogóval és automata öntözőrendszerrel. A kertvilágítás varázslatos esti hangulatot teremt, míg a hatalmas 40 m2 -es terasz tökéletes helyszín pihenésre, baráti összejövetelekre. A biztonságról kamera- és riasztórendszer gondoskodik, a napvédő rolók , és szúnyoghálók pedig a kényelmet szolgálják. Minden nyílászárón sávroló található.
Az elektromos tolókapun át, két autó számára van fedett védelem. A lakható szigetelt 25 m2 -és faház sok lehetőséget rejt magába, akár vendégházként is funkcionálhat, továbbá , a szauna felejthetetlen relaxációs élményeket nyújthat.
Ez az ingatlan remek elhelyezkedésű, ,teljesen új házas környezetben található. Kiválóan megközelíthető iskola , óvoda , buszmegálló, mely gyalogosan is 5 perc sétatávolságra található. Bevásárlási lehetőség gyalogosan szintén 5 perc.
Az ingatlan megtekintett állapotban , teljes bútorzattal is eladó.
Ne hagyja ki ezt a páratlan lehetőséget, és vegye birtokba álmai otthonát ,ebben a csodálatos környezetben.
Megtekintéssel kapcsolatban várom hívását!

Tripsó Ildikó
06309055419
Városi Ingatlaniroda

Tripsó Ildikó

Tripsó Ildikó

Ingatlanértékesítő
Debrecen
+36 (30) 905 5419
Észrevétel a hirdetéssel kapcsolatban
Egy ingatlanos naplója