Eladó sertéstelep Szeghalom határában 11 ha területen

9273 Nyomtatás Ajánlás Facebook

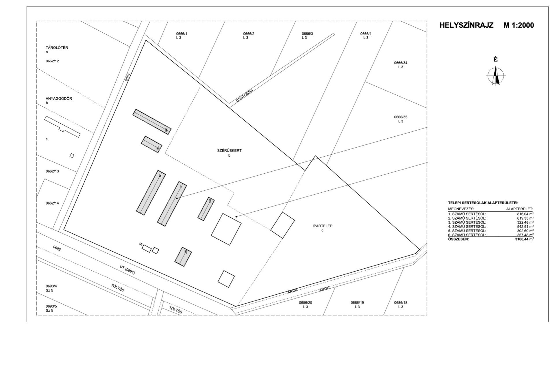
Szeghalom külterületén, Kertészsziget irányába, a 4245 számú főúttól mindössze 400 méterre eladóvá vált egy korszerű, 2015-ben felújított sertéstelep. A telephelyen 6 csarnok kapott helyet (külön-külön 400-600 sertés befogadására alkalmasak), melyek teljes kapacitása 3000-3200 (éves szinten 9000-9600) sertés. A csarnokok beton aljzatra épültek tégla falazattal, 2015-ben felújításon estek át, melynek keretében cserélve lettek a tetőszerkezetek és az ablakok, illetve a víz- és áramhálózat korszerűsítése is megtörtént. Emellett kiépítésre került egy korszerű etető- és itatórendszer is. Az állatok itatása fúrott kútról hidroforral és víztisztító berendezéssel történik. A telephelyen jelenleg 6 db csarnok található, melyek összes alapterülete 3160 nm. Az ingatlan teljes területe 11 ha, mely drótkerítéssel körbe van kerítve. Az áramellátás korszerűsítése is megtörtént, ennek megfelelően csarnokonként 50A erősségű hálózat áll rendelkezésre. Az ingatlan biztonságának érdekében riasztó- és kamerarendszer került kiépítésre. A telephelyen további csarnokok építésére is lehetőség van, így a kapacitás akár tovább is növelhető. Az ingatlan kivett ipartelepként szerepel a Földhivatali nyilvántartásban.
Figyelembe véve az ingatlan megközelíthetőségét és technológiai felszereltségét tökéletes választás állattartó telepnek, de akár raktárként történő hasznosításra egyaránt!
Amennyiben szeretné megtekinteni az ingatlant várom hívását a +36203922660 telefonszámon!

Dr. Folczné Szentléleki Enikő
PRÉMIUM

Dr. Folczné Szentléleki Enikő

Karrierigazgató
Gyula
+36 (20) 392 2660
Észrevétel a hirdetéssel kapcsolatban
Egy ingatlanos naplója