Egy félbemaradt álom új tulajdonosra vár

2190 Nyomtatás Ajánlás Facebook

Egy félbemaradt álom, amely új otthonra vár! Vannak házak, amelyeket nem csupán megépítenek, hanem megálmodnak. Ez az ikerház egy ilyen különleges történetet hordoz. Az épületet egy építész tulajdonos saját családjának tervezte, így minden részletében ott a szakértelem, a tapasztalat és a gondoskodás. Az élet azonban közbeszólt, így a ház szerkezetkész állapotban maradt – most Önre vár, hogy továbbírja ezt a történetet.
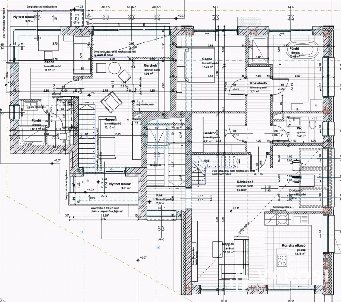
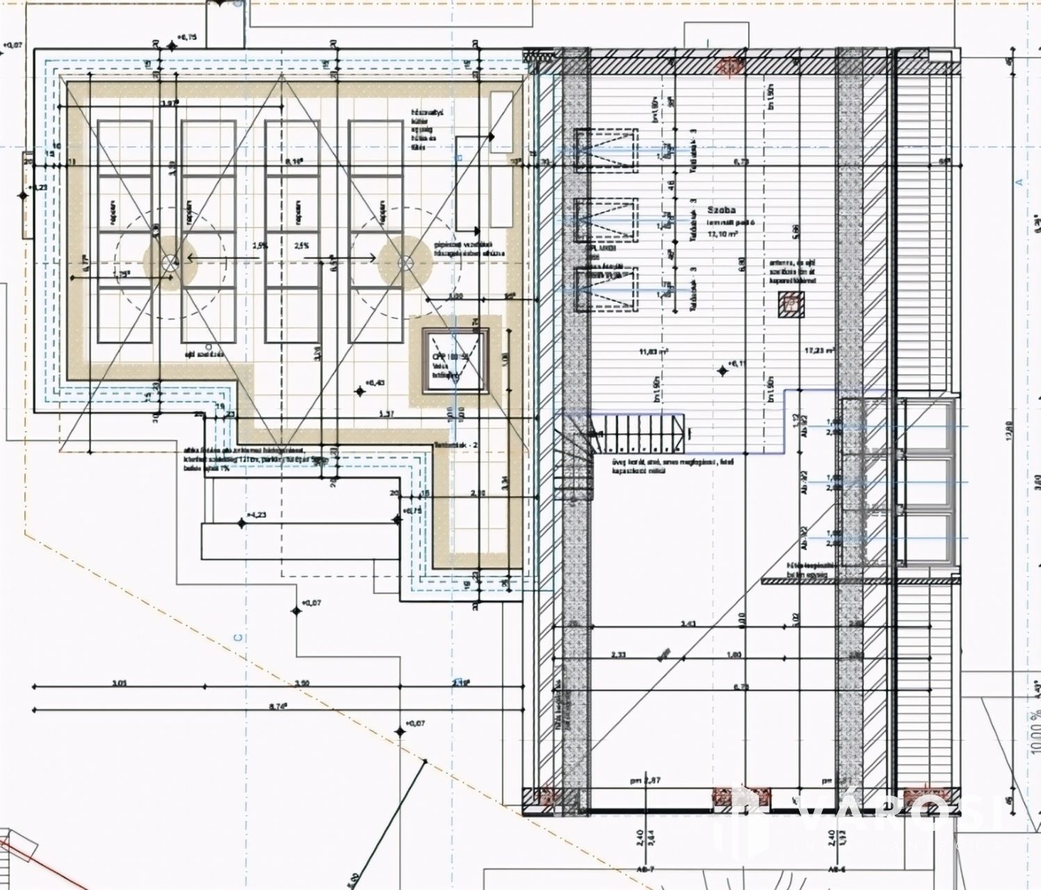
Az ingatlan főbb adatai: Lakótér: 290 m² Telek mérete: 750 m²
Az ingatlan kialakítása:
Ikerház egyik fele: kétszintes, tágas lakás Másik fele: két külön bejáratú lakás, egymás fölött – ideális többgenerációs családnak, befektetésnek vagy akár saját otthon + kiadás kombinációjára
Amit már most kínál:
Az egész épület alatt teremgarázs, mindhárom lakáshoz külön tároló Tetőn napelemrendszer Telken fúrt kút
Prémium minőségű bukó-, nyíló- és toló nyílászárók, háromrétegű hő- és hangszigetelt üvegezéssel
A belső terek a tervek szerint:
Amerikai konyhás nappalik, hálószobák, fürdőszobák Felső szinteken teraszok, erkélyek Praktikus, élhető elrendezés építész szemlélettel
Az ingatlan mindenben megfelel a jogszabályi előírásoknak, az építészeti tervdokumentáció rendelkezésre áll, így a befejezés gördülékenyen, szabályosan történhet.
Ez az ingatlan nem sablonház: minőségi alapokon nyugvó lehetőség, ahol az új tulajdonos saját elképzelései alapján fejezheti be a munkákat, miközben biztos lehet benne, hogy minden szerkezeti és műszaki megoldás átgondolt. Ha olyan otthont keresel, aminek lelke van, és amelyben a saját történeted is helyet kaphat – ezt érdemes megnézned!

Egeresi Viktória

Egeresi Viktória

Ingatlanértékesítő
Budapest
+36 (30) 192 5042
Észrevétel a hirdetéssel kapcsolatban
Egy ingatlanos naplója