Belváros közelében felújítandó ikerház eladó!

3478 Nyomtatás Ajánlás Facebook

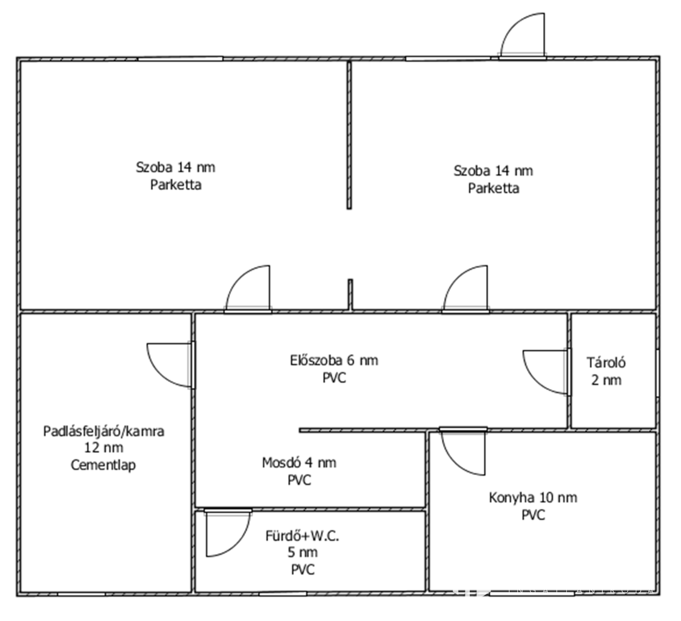
Salgótarjánban (Salgó kapu) 67 nm-es, 2 szobás, teljes felújítást igénylő, tégla+vályog szerkezetű, tehermentes, azonnal birtokba vehető ikerház eladó!

Helyiségei: 2 szoba, előszoba, fürdőszoba, konyha, kamra/padlásfeljáró, mosdó, tároló, az alsó szinten 20 nm-es pince.

Az épület teljes esztétikai és gépészeti felújítást igényel. Az utcafronti ablakok és a bejárati ajtó új, műanyag profillal szerelt.

A fűtést kandalló, a meleg víz ellátást villanybojler biztosítja.

Az alsó szinten két külön nyíló pincehelyiség található.

Az ingatlanhoz tartozó 742 nm-es telek, körbekerített, területén udvari gépkocsibeálló, önálló garázs (tetején panorámás napozóterasz), gazdálkodásra alkalmas melléképületek, termő gyümölcsfák találhatók.

A városközpont autóval 5 perc alatt elérhető, buszmegálló 400 méteren belül található.

Tatár Tamás
PRÉMIUM

Tatár Tamás

8 éve a Városi Ingatlaniroda tagja
Régióigazgató
Salgótarján
+36 (70) 439 8123
Észrevétel a hirdetéssel kapcsolatban
Egy ingatlanos naplója